Home
About Us
Our Services
Interior Design
Bespoke furniture
Front Elevation Design
Architectural Service
Landscape DESIGNING
Project consultancy
DÉCOR
Vastu Tips
Portfolio
Faq's
Career
Contact Us
Quick Inquiry
Search
Within 24 hrs.
Please Enter Name
Enter Valid characters Only
Please Enter Mobile No
Enter Correct Mobile No
Please Enter Email ID
Enter Correct Email ID
Submit Now
info@designplanning.in
+91 8865 952965
Teotias House
Home
Projects Details
View All
Private Residents
Apartment Interiors
Office Interiors
Front Elevation Design
Landscape
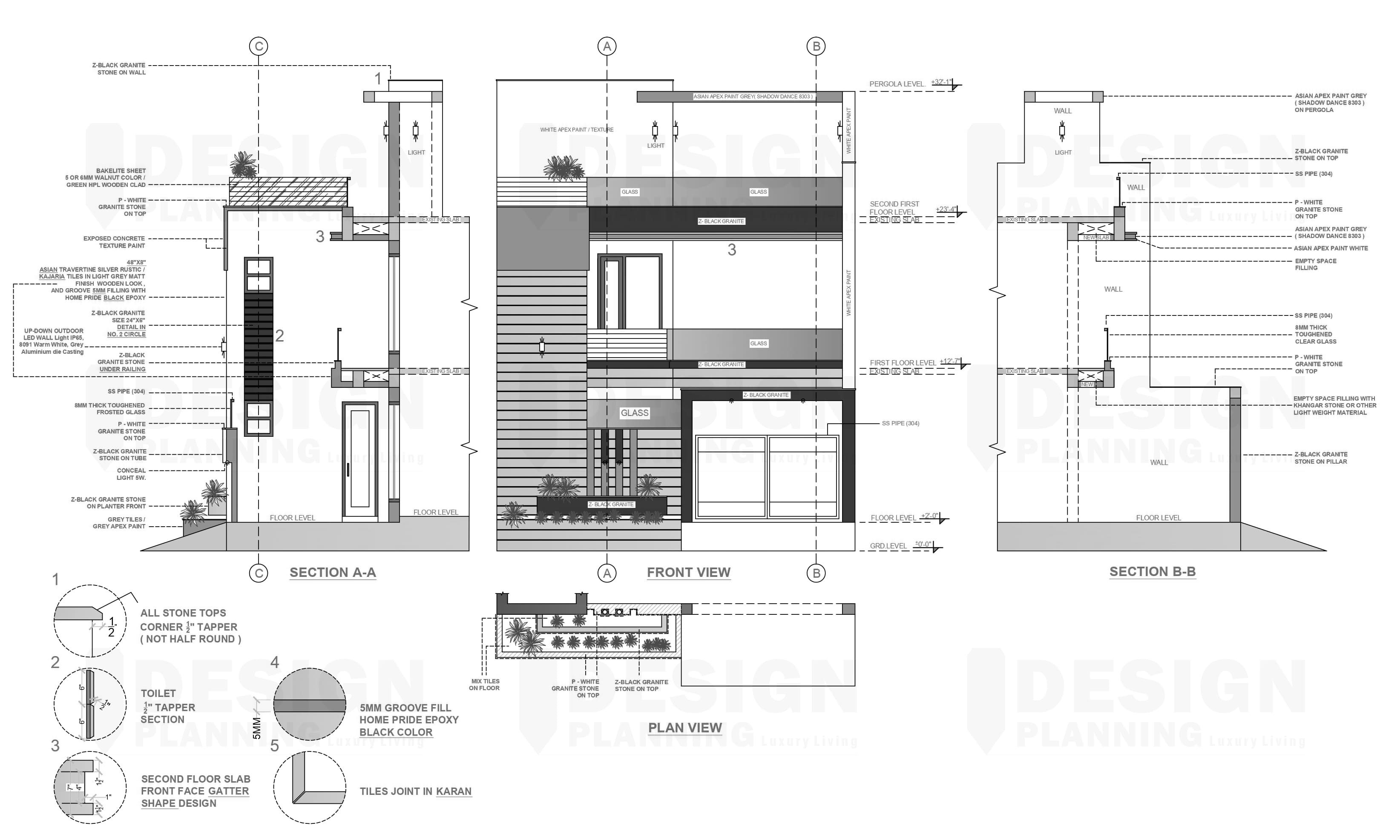
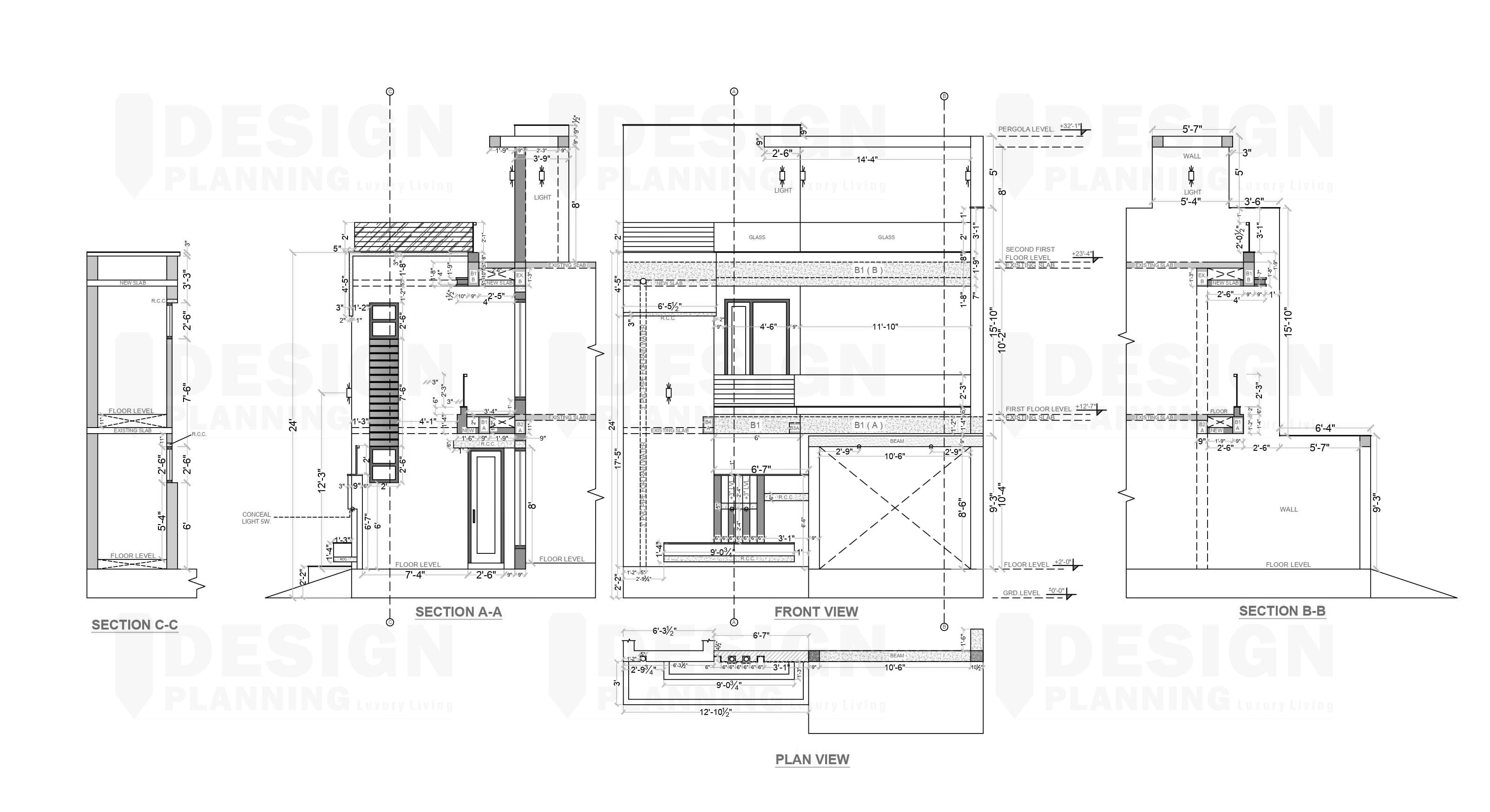
Project Name - Teotia's House
Location - Meerut